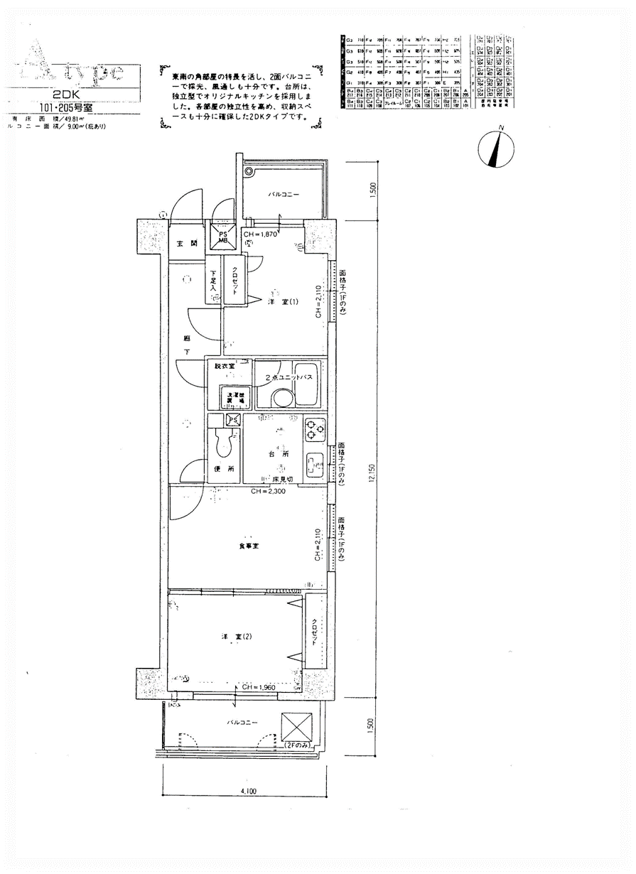
Layout ... ライオンズマンション倉敷松島 205号室

205号